Privée
Atelier de Montrottier
184 m²
125 0000 euros HT
livraison février 2016
mission MOE base
42110 Saint Martin Lestra
Le projet a consisté en la reconversion d’un bâtiment de ferme en habitation. Celle-ci est doublement orientée d’une part sur la cour à l’Est, d’autre part sur le jardin à l’Ouest.
La réhabilitation du logement a permis de différentier ses deux façades principales.
A l’Ouest, une grande ouverture est donnée sur l’espace en double hauteur du séjour. Elle offre un point de vue privilégié sur le jardin depuis la passerelle suspendue au-dessus du séjour.
L’ouverture est réalisée en retrait de la façade, confortant ainsi un seuil abrité habillé de bardage bois et comprenant un enmarchement permettant de retrouver le niveau naturel du jardin. Le jambage et le linteau de substitution sont réalisés en béton brut. L’effet d’encadrement en débord sur la façade permet une distinction claire avec l’appareillage pierre existant.
A contrario, la façade Est reste inchangée dans ses ouvertures afin de préserver la qualité de la façade dotée de beaux encadrements en pierres.
L’ensemble de l’habitation est isolé par l’intérieur et les nouvelles menuiseries aluminium sont posées au nus intérieurs dans la continuité de l’isolant. L’effet plastique produit renforce l’effet d’embrasure des ouvertures. Les creux extérieurs sont habillés de panneau 3 plis ce qui offre une ambiance plus douce depuis les pièces intérieures.
Le séjour gagne une double hauteur avec une distribution du R+1 via une passerelle orientée sur le jardin via le cadrage de la grande ouverture. On retrouve la matière bois dans les finitions intérieures : lattage de la passerelle, garde-corps ou appuis de menuiseries, donnant ainsi une cohérence d’ensemble au projet.
plan de situation
Vue de la façade Ouest, état existant
Vue de la façade Ouest, phase chantier
Vue proche de la façade Ouest terminée
Vue lointaine de la façade Ouest terminée
Vue de la façade Est terminée
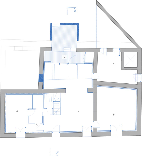
plan RDC
1. Séjour | 2. Cuisine | 3. Salle de bain | 4. Chambre parentale | 5. Bureaux / Buanderie | 6. Chaufferie bois | 7. Terrasse couverte | 8. Passerelle | 9. Chambre enfant 1 | 10. Salle de bain | 11. Bureau / Salle de jeux | 12. Chambre enfant 2 | 13. Dépendance
plan R+1
1. Séjour | 2. Cuisine | 3. Salle de bain | 4. Chambre parentale | 5. Bureaux / Buanderie | 6. Chaufferie bois | 7. Terrasse couverte | 8. Passerelle | 9. Chambre enfant 1 | 10. Salle de bain | 11. Bureau / Salle de jeux | 12. Chambre enfant 2 | 13. Dépendance
coupe Est-Ouest
1. Séjour | 2. Cuisine | 3. Salle de bain | 4. Chambre parentale | 5. Bureaux / Buanderie | 6. Chaufferie bois | 7. Terrasse couverte | 8. Passerelle | 9. Chambre enfant 1 | 10. Salle de bain | 11. Bureau / Salle de jeux | 12. Chambre enfant 2 | 13. Dépendance
élévation Ouest