_
lauréat du palmarès
des jeunes urbanistes 2016

Extension d'une maison d'habitation et création d'un parcours abrité

Maitre d'ouvrage :

Privée

Maitre d'oeuvre :

Atelier de Montrottier

Surface de plancher créée :

66 m²

Coût des travaux :

75 0000 euros HT

Calendrier :

livraison juillet 2016

Missions exécutées :

mission MOE base

Localisation :

69610 Aveize

Cette maison d’habitation compose une des parties d’un corps de ferme typique des Monts du Lyonnais. Les bâtis s’organisent autours d’une cours intérieure auquelle on accède par un porche intégré au mur d’enceinte.
La maison d’habitation à été réhabilitée il y a quelques années par la maîtrise d’ouvrage en autoconstruction. Aujourd’hui, la famille s’étant agrandie, l’extension de l’habitation permet de créer une pièce de vie et une suite parentale supplémentaire ainsi qu’un espace technique pour accueillir le silo à granulé bois récemment acquis. L’extension vient se loger dans la continuité de l’habitation existante, en se logeant sous la toiture existante abritant à l’origine un chapi.

Le nivellement du sol a été repensé et notamment excavé au niveau de l’extension pour donner des hauteurs sous plafonds confortables tout en se raccordant aux différents niveaux existants.
Le volume créé s’avance en débord sur la cour afin de profiter d’une vue nouvelle sur le versant Ouest du jardin et les prés environnants.
Il abrite au R+1 une large terrasse offrant un lieu extérieur unique et des perspectives sur le paysage.
A cette extension vient s’articuler un parcours abrité en RDC permettant de relier le porche aux deux entrées du logements. Il qualifie ainsi différents seuils et crée des épaisseurs habitables dans la cour.
L’ensemble du projet est en ossature et revêtement bois avec des sols et murs de soutènements en béton brut. Par cette nouvelle matérialité, le caractère contemporain du projet est clairement assumé.

plan de situation

plan de situation

vue sur l’extension au travers du porche d’entrée

vue sur l’extension au travers du porche d’entrée

vue sur l’extension depuis le seuil du porche d’entrée

vue sur l’extension depuis le seuil du porche d’entrée

Vue sur le parcours abrité

vue sur le parcours abrité

Vue sur le garde-corps et son retournement en pergola au couronnement de l’extension

vue sur le garde-corps et son retournement en pergola au couronnement de l’extension

Schéma-concept du projet

schéma-concept du projet

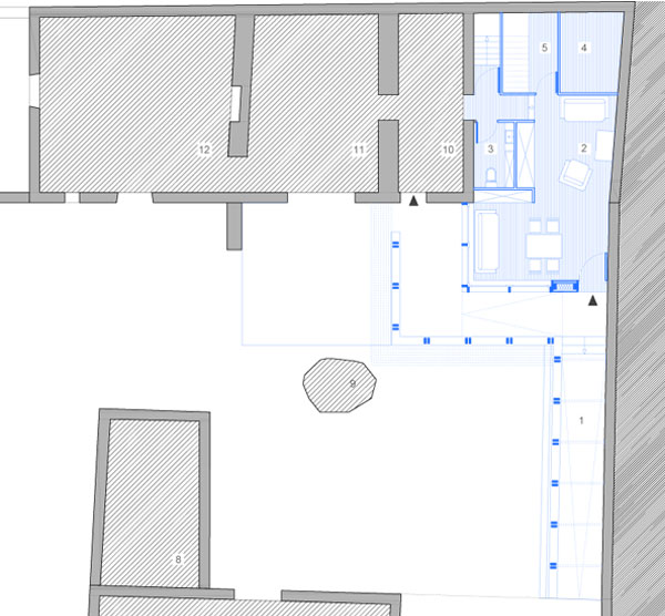
Plan RDC

plan RDC
1. Coursive couverte | 2. Séjour | 3. Toilette | 4. Silos copeaux bois | 5. Espace technique | 6. Espaces d'entrée couvert
7. Grange | 8. Abris jardin | 9. Puits | 10. Cellier / Entrée | 11. Cuisine | 12. Séjour

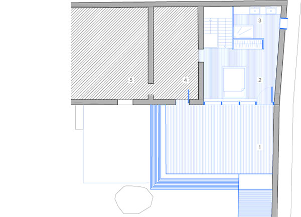
Plan R+1

plan R+1
1. Terrasse | 2. Chambre | 3. Salle de bain | 4. Bureau / Salle de jeux | 5. Chambre

Elévation Sud

élévation Sud

Elévation Ouest

élévation Ouest