_
laur�at du palmar�s
des jeunes urbanistes 2016

Commune de Billom

Maitre d'ouvrage :

Commune de Billom

Maitre d'oeuvre :


Atelier de Montrottier Loic Parmentier & associes
+ Atelier du Rouget Simon Teyssou & associes
+ Collectif X

Montant de l'enveloppe

48 045€ HT

Statut

Tranche ferme terminée, tranche opérationnelle en cours

Lieu:

63160 Billom

Depuis les années 1980, le développement urbain de la commune de Billom, dynamique et attractive, s’est fait sous forme de lotissements pavillonnaires, dont l’expansion incontrôlée impacte fortement la qualité de l’espace urbain. Par ailleurs, le centre-bourg présente un bâti dense caractéristique, dont les qualités patrimoniales sont protégées, mais qui pose la question de l’adaptation du bâti ancien aux modes d’habiter contemporains.

Afin d’enrayer cet étalement urbain, l’étude urbaine doit permettre la reconquête du centre-bourg en répondant à la problématique: comment habiter le centre-bourg ?
Au travers d’une démarche participative, habitants, élus et équipe de maîtrise d’œuvre réfléchissent ensemble à la vie en centre-bourg en questionnant le logement et la qualité des espaces publics. Cette étude aboutissant à un diagnostic précis de l’ensemble de la commune permet l’élaboration d’un plan-guide et la définition de scenarii d’aménagements, identifiant des îlots pivots pour lancer la redynamisation du centre-bourg de Billom

La boucle de la Grand Combe et la renaturation de la vall�e Ricard

Le serpent carrossable et la traverse Est-Ouest

Le "d�j�-l�"

Plan de masse, ambiances, coupe paysag�re

La for�t des loisris

La lisi�re cultiv�e

Le camp foug�res

La ch�naie habit�e

Le plateau des halles

Le parc des ing�nieurs

La place basse

Axonom�trie

Vue depuis le bas du camp foug�res

Vue sur les vergers partag�s

Vue depuis la cour urbaine sur la typologie 2

Vue de la noue v�g�tale et de la s�quence d'entr�e de la typologie 1

Vue depuis le s�jour d'une maison � patio

Coupe g�n�rale

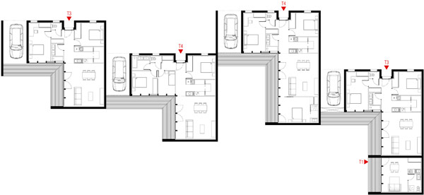
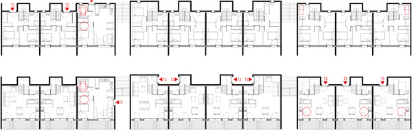
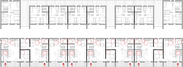
Typologie 1 - logements interm�diaires en bande

Typologie 2 - logements interm�diaires

Typologie 3 - logements interm�diaires

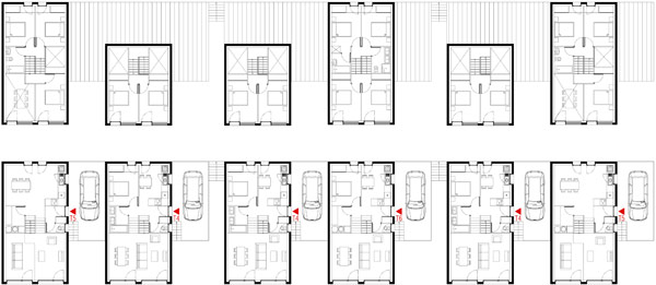
Typologie 4 - maisons individuelles

Typologie 5 - maisons individuelles

Typologie 6 - maisons � patio